Giá bán: Liên hệ
Hê thống phòng sơn xe tải, xe bus kết hợp phòng sơn nhanh SPRB-2617 và phòng chà SAV-2517. Sơn được tất cả các dòng xe, cỡ lớn, nhỏ, đạt hiệu quả, tiết kiệm
Phòng sơn Nhanh Model: SPRB-2617
.JPG)
Công nghệ sử lý bụi sơn bằng màng nước
Hệ thống cabin
+ Kích thước trong lòng: 16 x 5.4 x 4.5m
+ Kích thước bao: 16 x 6 x 8.5mm
+ Cửa cuốn 2 đầu: 4 x 4.5m
+ Cửa giữa: 5,4 x 4.5m
Có 03 cửa cuốn, 2 cửa hai đầu, 1 cửa bên trong phòng sơn để ngăn phòng độc lập theo kích thước 12m x 4m
+ Cửa phụ bên hông 800 x 2000m; khung, ke hợp kim nhôm, ô cửa kính nhìn trong thẩm mỹ, roăng cao su ống làm kín, chống ồn khi đóng, khóa chốt loại bi trượt chịu áp lực dương của phòng sơn
+ Tấm vách dày 50mm rộng 1000mm lắp ghép lưỡi xếp liền, Vật liệu Xốp EPS chống cháy tỷ trọng 12-40kg/m3 phủ tôn 2 lớp sơn tĩnh điện dày 0.4mm
+ Các ke cạnh, viền, góc hợp kim nhôm
+ Các điểm tiếp xúc giữa vách và khung chính của hệ thống quạt hút có cao su ống làm kín, giảm rung
+ Tấm trần dày 50mm rộng 1000mm lắp ghép lưỡi xêp liền, Vật liệu Xốp EPS chống cháy phủ tôn 2 lớp sơn tĩnh điện dày 0.4mm
+ Tổng Công suất: 69,024kW
Phòng Chà Model: SAV-2517
.jpg)
+ Kích thước trong lòng: 16 x 5.4 x 4.5m
+ Kích thước bao: 16 x 5.5 x 8.5mm
+ Cửa cuốn : 4 x 4.6m
+ Cửa giữa: 5,4 x 4.5m
Có 03 cửa cuốn, 2 cửa hai đầu, 1 cửa bên trong phòng sơn để ngăn phòng độc lập theo kích thước 12m x 4m
+ Cửa phụ phía sườn 800 x 2000m; khung, ke hợp kim nhôm, ô cửa kính nhìn trong thẩm mỹ, roăng cao su ống làm kín, chống ồn khi đóng, khóa chốt loại bi trượt chịu áp lực dương của phòng sơn
+ Tấm vách dày 50mm rộng 1000mm lắp ghép lưỡi xếp liền, Vật liệu Xốp EPS chống cháy tỷ trọng 12-40kg/m3 phủ tôn 2 lớp sơn tĩnh điện dày 0.4mm
+ Các ke cạnh, viền, góc hợp kim nhôm
+ Các điểm tiếp xúc giữa vách và khung chính của hệ thống quạt hút có cao su ống làm kín, giảm rung
+ Tấm trần dày 50mm rộng 1000mm lắp ghép lưỡi xêp liền, Vật liệu Xốp EPS chống cháy phủ tôn 2 lớp sơn tĩnh điện dày 0.4mm
+ Tổng Công suất: 39,024kW
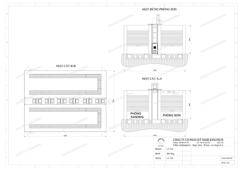
Bản Thiết Kế:

Phòng sơn Nhanh Model: SPRB-2617
Công nghệ sử lý bụi sơn bằng màng nước
Hệ thống cabin
+ Kích thước trong lòng: 16 x 5.4 x 4.5m
+ Kích thước bao: 16 x 6 x 8.5mm
+ Cửa cuốn 2 đầu: 4 x 4.5m
+ Cửa giữa: 5,4 x 4.5m
Có 03 cửa cuốn, 2 cửa hai đầu, 1 cửa bên trong phòng sơn để ngăn phòng độc lập theo kích thước 12m x 4m
+ Cửa phụ bên hông 800 x 2000m; khung, ke hợp kim nhôm, ô cửa kính nhìn trong thẩm mỹ, roăng cao su ống làm kín, chống ồn khi đóng, khóa chốt loại bi trượt chịu áp lực dương của phòng sơn
+ Tấm vách dày 50mm rộng 1000mm lắp ghép lưỡi xếp liền, Vật liệu Xốp EPS chống cháy tỷ trọng 12-40kg/m3 phủ tôn 2 lớp sơn tĩnh điện dày 0.4mm
+ Các ke cạnh, viền, góc hợp kim nhôm
+ Các điểm tiếp xúc giữa vách và khung chính của hệ thống quạt hút có cao su ống làm kín, giảm rung
+ Tấm trần dày 50mm rộng 1000mm lắp ghép lưỡi xêp liền, Vật liệu Xốp EPS chống cháy phủ tôn 2 lớp sơn tĩnh điện dày 0.4mm
+ Tổng Công suất: 69,024kW
Phòng Chà Model: SAV-2517
.jpg)
+ Kích thước trong lòng: 16 x 5.4 x 4.5m
+ Kích thước bao: 16 x 5.5 x 8.5mm
+ Cửa cuốn : 4 x 4.6m
+ Cửa giữa: 5,4 x 4.5m
Có 03 cửa cuốn, 2 cửa hai đầu, 1 cửa bên trong phòng sơn để ngăn phòng độc lập theo kích thước 12m x 4m
+ Cửa phụ phía sườn 800 x 2000m; khung, ke hợp kim nhôm, ô cửa kính nhìn trong thẩm mỹ, roăng cao su ống làm kín, chống ồn khi đóng, khóa chốt loại bi trượt chịu áp lực dương của phòng sơn
+ Tấm vách dày 50mm rộng 1000mm lắp ghép lưỡi xếp liền, Vật liệu Xốp EPS chống cháy tỷ trọng 12-40kg/m3 phủ tôn 2 lớp sơn tĩnh điện dày 0.4mm
+ Các ke cạnh, viền, góc hợp kim nhôm
+ Các điểm tiếp xúc giữa vách và khung chính của hệ thống quạt hút có cao su ống làm kín, giảm rung
+ Tấm trần dày 50mm rộng 1000mm lắp ghép lưỡi xêp liền, Vật liệu Xốp EPS chống cháy phủ tôn 2 lớp sơn tĩnh điện dày 0.4mm
+ Tổng Công suất: 39,024kW
Bản Thiết Kế:

Sản phẩm tương tự






Chia sẻ










