Giá bán: Liên hệ
CẦU NÂNG CẮT KÉO
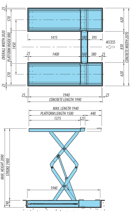
Model: HL-35F
Hãng sản xuất - xuất xứ: Heshbon - Korea
Nhập khẩu và phân phối: KINGTECH ENGINEERING
Thông số kỹ thuật
- Điện thế & Công suất Motor:3pha: 3ph : 2HP x 4P x 220/380V x 50/60Hz
- Loại cầu nâng thủy lực.
- Sức nâng (kg): 3500
- Bề rộng mỗi tấm đỡ (mm): 620
- Chiều dài của mỗi tấm đỡ (mm): 1500
- Khoảng cách giữa 2 tấm đỡ (mm): 830
- Chiều cao nâng min/max (mm): 100/1900.
- Kích thước tổng thể (mm): 1,940(L) X 2,020(W) X 190(H) mm
Option mua thêm
- Van adoptor kit: 5.865.000 vnđ
- R-controller: 3.910.000 vnđ
- Pit frame for inground: 10.350.000 vnđ
Bản vẽ kích thước cầu nâng Heshbon HL-35F

Bản vẽ kích thước cầu nâng Heshbon HL-35F


Sản phẩm tương tự








Chia sẻ












